For Sale:
€1,499,000 (no VAT due – Art. 45 VAT Act)
≈ €200 /m² including land — well below the cost to build the existing reinforced-concrete structure.Project Overview:
An exceptional opportunity to acquire a partially built 7,492 m² reinforced-concrete structure on 17,395 m² of land in Malo Selo, near Dupnitsa, Bulgaria — just 60 minutes from Sofia via highway.The existing reinforced-concrete shell (originally a prophylacticum) is structurally complete and in great condition, providing a solid foundation for redevelopment into 59 residential apartments.An advanced-stage redevelopment opportunity with limited permitting and construction risk for experienced investors or developers looking for a high-upside project in a growing area near Sofia.Cadastral Numbers: 46824.33.1, 46824.33.1.1, 46824.33.1.2Location: Village Malo Selo, Municipality Bobov Dol, Region Kustendil

Close to Dubnitsa (11km - 15 minutes) and Sofia (75km - 60 minutes)This is in easy commutting distance and very attractive for buyers that are priced out of the real estate market in Sofia.
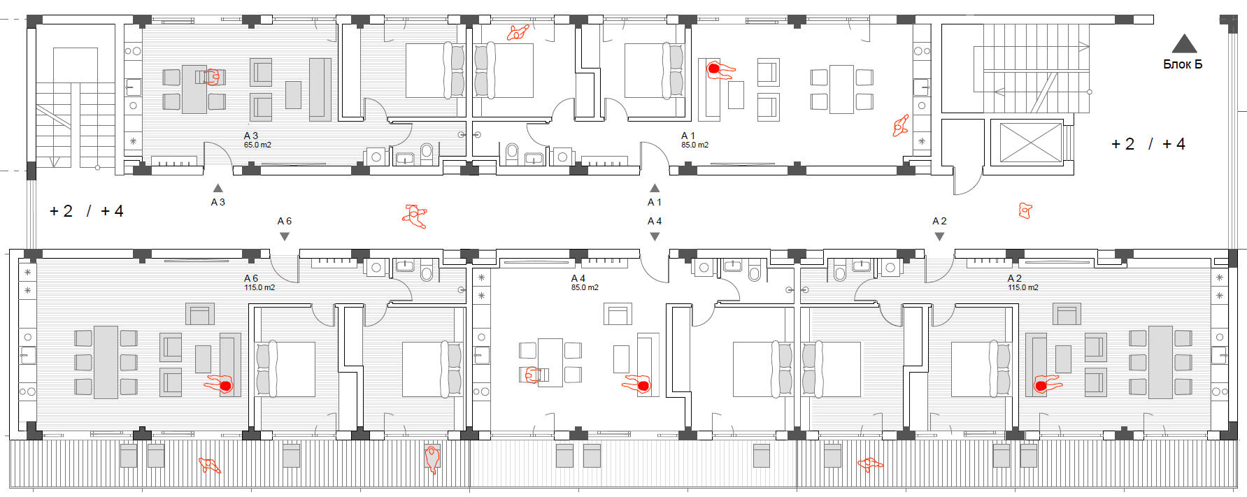
Development PotentialThe structure is roughly 30 % complete — a solid concrete frame and internal walls worth €1.6–2 million to replicate today plus 17,000m2 land in an exceptional location.Planning documents and technical expertise are already available, shortening the path to permitting. And you save up to 9 months for building the foundation and structure.Most 1BR/2BR apartment sizes range from 65m2-100m2 net, each with individual storage as well as assigned parking space. Half with balconies or terraces. High ceilings and some premium floorplans with 2-level maisonettes and rooftop penthouse.See article in Kapital.bg about the project.
This property, currently requiring full renovation, boasts a remarkably solid concrete structure and includes all necessary documentation. Think about it like a building structure that is 30% complete, but at a lower price than to build from scratch. Rough estimate to build concrete structure and internal walls is about €1.6m to €2m.
After change in the development plan from resort to mixed use, submitting new architectural plans and adjusting some walls to match new plans, it is very quick to bring to Act 14 status and separate in the cadastre which makes it easy to start sales.Though unused for several years, it offers immense potential with a comprehensive renovation and modernization plan.Key tasks include legal conversion into individual units in the cadaster, as well as the installation of new water and electrical systems.Once completed, this property could become an exceptional location for residential use. Especially for people that work in Sofia but prefer to live in nature - and at significantly lower cost than in Mladost.The possibilities are endless, especially given the property's prime location—nestled in nature yet conveniently close to the amenities of Dupnitsa town and the highway to Sofia.The region is expected to benefit from the green energy transition as well as EU funds to support this transformation of the region and the upgrades to the nearby Bobov Dol power plant
Drone Shots of the Building






Download all
documents and plans PDF
Tour of the Building



Model after Construction
without design of the facade
Invest in the Future of Family Living—Just 60 Minutes from SofiaWe’re presenting a rare opportunity to invest in the redevelopment of a residential building in a prime natural setting, only one hour from Sofia and minutes from Dupnitsa. With highway access nearby, it’s perfectly positioned for a new residential concept that serves a growing market segment: families who work in the city but want to raise their children in nature.Why This Project Makes Sense* Untapped Demand: More families are leaving dense urban areas in search of healthier, nature-connected lifestyles—without wanting to give up professional opportunities in Sofia. This location offers both.
* Flexible Redevelopment: The existing structure allows for efficient transformation into spacious, family-friendly apartments. Early-stage planning enables optimization for modern needs with shared amenities and outdoor spaces.
* Attractive ROI Potential: Compared to overbuilt urban markets, this project offers significantly lower entry costs with strong long-term appreciation and rental demand. The proximity to Sofia makes it viable for both residential sales and long-term leasing.
* Community-Driven Appeal: Buyers and renters are increasingly drawn to community-oriented developments, especially those offering safety, space, and lifestyle benefits for children—making this a strong differentiation point.
* Park-like surroundings atop a scenic hill, offering stunning panoramic views and bordered by lush forest. Situated on a generous 17,000 m² plot with ample parking, plus space for a BBQ area, playground, and outdoor leisure.

We make this project easier for you to develop:
- 1-Year Purchase Option: Secure exclusive rights to the project for €100,000, fully deductible from the final sales price if exercised. This gives you time to promote to buyers, prepare designs, and finalize your financing.- Flexible Milestone Payments: Possible structure – 10% on signing, 20% upon building-permit issue, 30% after structural completion (Act 15), 20% once half of apartments are pre-sold, and the remaining 20% at final notarial transfer to the end buyers. Ownership transfers only after full payment.- Local Support Network: We can connect you with experienced architects, engineers, lawyers, and construction companies familiar with the property. Initial planning documents are already prepared and can be shared to accelerate permitting.- Seller Financing: Available for qualified developers – up to 3 years at 10% annual interest (terms negotiable), with a 25% down payment and mortgage security on the property.- On-Site Operational Base: A fully functional building located about 1 km from the site can be rented for worker accommodation, offices, or logistics, and can also serve as a temporary storage or water-pump station.- Flexible Deal Structures: The seller may accept partial payment through retention of the finished penthouse apartment A501, with the unit’s value to be mutually agreed based on market valuation at the time of transfer.

Why Invest HereStrong fundamentals: Affordable entry cost, proximity to Sofia, growing regional demand.Excellent logistics: Direct access to E79 highwayReady infrastructure: Existing road, nearby utilities, and structurally complete building.Low competition: Few comparable projects in the region.Attractive financing & deal flexibility: Seller offers financing and milestone-based structure to ease cash flow for the developer.
Get in touch
Matthias Zeitler
[email protected]
+359 884 309 703
Location:
Village Malo Selo
Municipality Bobov Dol
Region Kustendil